四川麥克威通風設備有限公司
咨詢熱線:028-82630900
手機:13881905158
傳真:028-82630433
郵箱:mcwell@qq.com
辦公:成都市青羊區光華東三路489號西環廣場2棟
廠址:成都市金堂淮口工業區節能大道(國染大道)
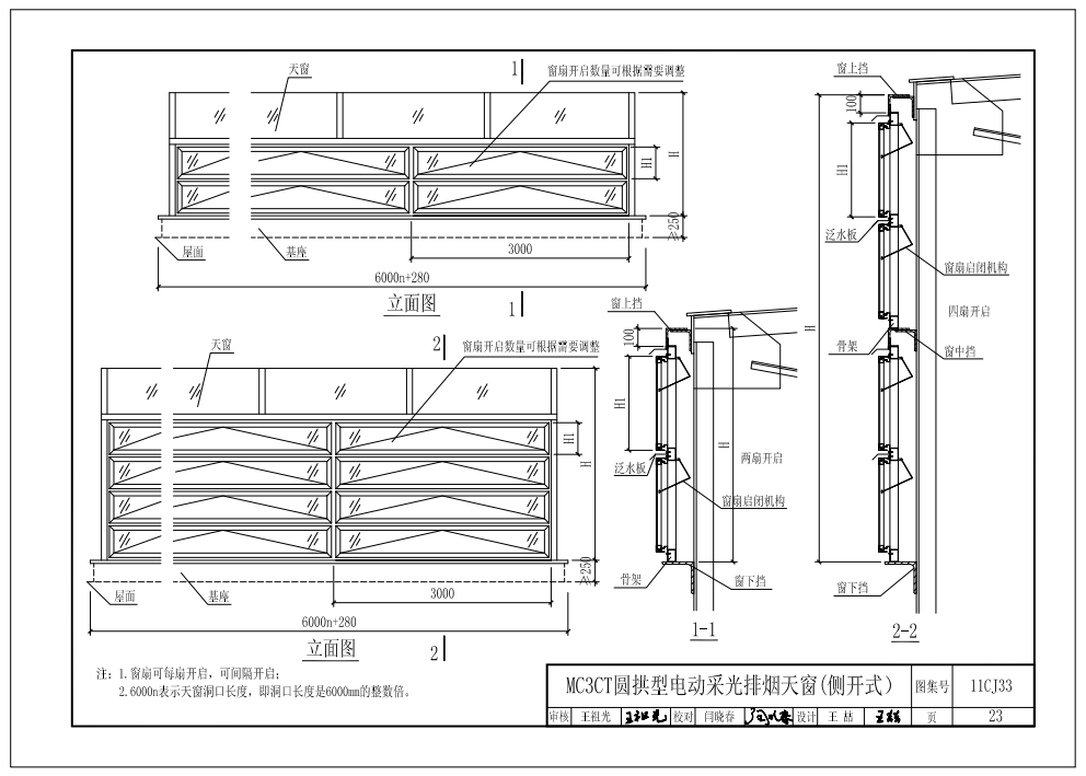
側開式圓拱形電動采光排煙天窗的結構示意圖
從外觀結構看,側開式圓拱形電動采光排煙天窗的外觀為圓拱形,由弧形采光頂、弧形骨架、窗扇、窗體、端頭、收邊件、電控箱、電動推桿等結構組成。其中窗扇設置在側立面,為上懸窗,既可設計為單層側開窗,也可設計為多層側開窗。此外,弧形板材和弧形骨架的結構強度大,能承受較大的外力荷載,如風雪荷載等。
從規格尺寸看,側開圓拱型電動天窗的洞口寬度為2000mm、3000mm、4000mm、5000mm、6000mm,洞口長度為6000mm,單層側開圓拱型天窗的窗體高度為1100mm-1714mm,多層側開圓拱型天窗的窗體高度為1830mm-4350mm,多層側開的窗體高度更高,體積更大。此處數據參考11cj33《通風采光天窗》圖集。
若對側開式圓拱形電動采光排煙天窗的結構存在疑問,歡迎咨詢電動采光排煙天窗專業生產廠家麥克威!
熱點產品 / Hot Products
“推薦閱讀”
- 2023-11-27從型號分析圓拱形電動采光排煙天窗的構造特點
- 2023-11-29側開式圓拱形電動采光排煙天窗實現車間自然采光和通風
- 2023-05-13從通風功能分析圓拱形電動采光排煙天窗






川公網安備 51010502010565號
掃一掃更精彩
掃一掃

