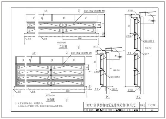
側開式圓拱形電動采光排煙天窗是一種常見的電動采光排煙天窗,可幫助建筑進行日常通風、自然采光,在危急時刻,還可發揮消防排煙功能。下面為大家介紹側開式圓拱形電動采光排煙天窗的結構特點,并附上結構示意圖。
從外觀結構看,側開式圓拱形電動采光排煙天窗的外觀為圓拱形,由弧形采光頂、弧形骨架、窗扇、窗體、端頭、收邊件、電控箱、電動推桿等結構組成。其中窗扇設置在側立面,為上懸窗,既可設計為單層側開窗,也可設計為多層側開窗。此外,弧形板材和弧形骨架的結構強度大,能承受較大的外力荷載,如風雪荷載等。
從規格尺寸看,側開圓拱型電動天窗的洞口寬度為2000mm、3000mm、4000mm、5000mm、6000mm,洞口長度為6000mm,單層側開圓拱型天窗的窗體高度為1100mm-1714mm,多層側開圓拱型天窗的窗體高度為1830mm-4350mm,多層側開的窗體高度更高,體積更大。此處數據參考11cj33《通風采光天窗》圖集。
若對側開式圓拱形電動采光排煙天窗的結構存在疑問,歡迎咨詢電動采光排煙天窗專業生產廠家麥克威!

MCW5型通風天窗(暗扣式)
MCW7型通風天窗(箱型骨架式)
C1XT三角形電動采光排煙天窗(下開式)
TC5型流線型通風天窗