基座是連接通風采光天窗與屋面的構件,其直接安裝在屋面,安裝的好壞將直接影響天窗的密封性、防水性。本文將根據通風采光天窗11cj33圖解基座安裝方案。
天窗基座安裝在屋面鋼梁或檁條上,而骨架則直接安裝在基座上。天窗基座一般采用工字鋼、槽鋼、成型鋼板等材料制作,而材料的型號、尺寸則與天窗型號及工程結構有關系,必須滿足項目所需荷載要求,保證結構安全性。
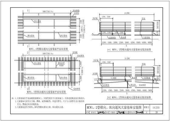
通風采光天窗11cj33圖解第26頁適合MCW1型薄型通風天窗和MCW2型薄型通風天窗,其橫向和縱向基座平面布置圖、基座安裝剖面圖如下:
MCW4型通風天窗(壓桿式)、MCW5型通風天窗(暗扣式)以及電動采光排煙天窗基座安裝圖如下:
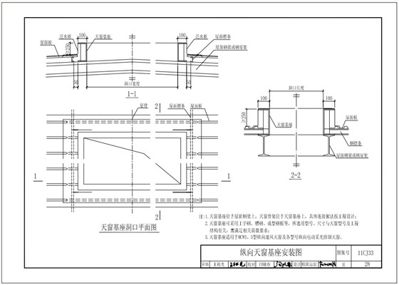
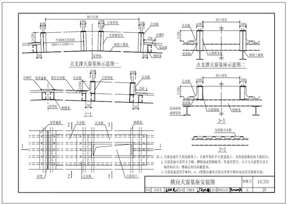
縱向天窗和橫向天窗基座安裝示意圖如下:

MCW5型通風天窗(暗扣式)
MCW7型通風天窗(箱型骨架式)
C1XT三角形電動采光排煙天窗(下開式)
TC5型流線型通風天窗