聯系麥克威
四川麥克威通風設備有限公司
咨詢熱線:028-82630900
手機:13881905158
傳真:028-82630433
郵箱:mcwell@qq.com
辦公:成都市青羊區光華東三路489號西環廣場2棟
廠址:成都市金堂淮口工業區節能大道(國染大道)
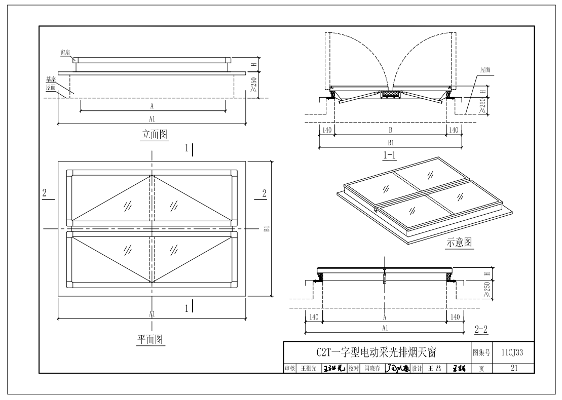
一字型電動采光排煙天窗的剖面示意圖
其示意圖、立面圖、平面圖、剖面圖可參考國標圖集11CJ33《通風采光天窗》、09J621-2《電動采光排煙天窗》、21J621-1《天窗》、22CJ87-3《采光、通風、排煙天窗(三)》等圖集,以上圖集均可在本網站首頁下載。
下一篇:安裝薄型采光屋頂通風器有哪些好處
上一篇:通風采光天窗11CJ33圖集的使用要求
熱點產品 / Hot Products
“推薦閱讀”
- 2023-04-2111CJ33通風采光天窗國標圖集的圍護板要求
- 2023-04-17自身高度對薄型采光屋頂通風器有什么影響
- 2023-04-07圓拱側開型采光排煙天窗的常用材料有哪些






川公網安備 51010502010565號
掃一掃更精彩
掃一掃

